PROJEKTE
Denkmalschutz
Bundwerkstadel Aich
Ignaz Günther Gymnasium
Kindergarten Hirnsberg
Vermessungsamt Miesbach
Vermessungsamt Mühldorf
Villa Siegfried
Welschkramer
Gewerbe
Betriebsgebäude Aich
Islandpferdehof Etzenberg
Moosangerhof Markt Schwaben
Pferdezentrum Portugal
Öffentliche Gebäude
Grundschule Oberbergkirchen
Hauptschule Bad Endorf
Ignaz Günther Gymnasium
Kindergarten Hirnsberg
Kindergarten in Agbanto Benin
Kindergarten Küpferling
Kinderkrippe Rosenheim
Mensa IGG
Rathaus Reichenbachstrasse
Vermessungsamt Miesbach
Vermessungsamt Mühldorf
Landwirtschaft
Betriebsgebäude Aich
Islandpferdehof Etzenberg
Moosangerhof Markt Schwaben
Pferdezentrum Portugal
Städtebau
Wohnquartier Oberwöhr West
Barrierefreies Wohnen am Mühlbachbogen
Wohnquartier Mitterfeld West
Rahmenplanung Wiesentor
Wohnen
Bundwerkstadel Aich
Haus Hohenfried
Haus M
Haus R
Haus S
Haus Z
Nachverdichtung Föhrenweg
Villa Siegfried
Wohnanlage Mühlbachbogen
Wohnen an der Kaltenmühle
Wohnquartier Mitterfeld West
Zuhaus in Törwang
Projektliste
Veröffentlichungen
TEAM
KONTAKT
Menü
Menü
Projekte
Städtebau
Wohnen
Öffentliche Gebäude
Denkmalschutz
Gewerbe
Landwirtschaft
Projektliste
Veröffentlichungen
Team
Kontakt
Städtebau
Wohnen
Öffentliche Gebäude
Denkmalschutz
Gewerbe
Landwirtschaft
Projektliste
Veröffentlichungen
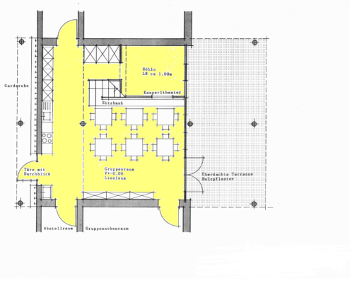
Wettbewerb Kindergarten Küpferling
Neubau eines 3-gruppigen Kindergartens mit Mehrzweckraum in Holzbauweise
zur Projektübersicht
Nach oben scrollen